产品属性:进口高端型材门窗
产品类别:60
产品概况:
该系列是SOFTLINE 58mm白色平开系列的彩色共挤解决方案的补充,针对65%
节能标准要求的市场需求。SOFTLINEAD60广泛应用于中国大部分地区,并且在维卡出口市场也越来越受欢迎,包括新西兰及澳大利亚,这是因为在这些气候非常严酷的地区,型材的彩色共挤涂层具备了高性能的色彩稳定性。
设计特点:
1.系列Uf1.8W/m2·K(含增强型钢)
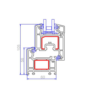
2.系列型材厚60mm,3腔。
3.玻璃厚度范围4mm–33mm,玻璃嵌入深度18mm.
开启方式:内平开、内开内倒、上悬、下悬
高性能配件:
1.ROTO 全系列定制五金产品
2.多点锁闭系统配合防盗设计,更高的安全等级。
3.三元乙丙密封隔热胶条。
4、可选内置电动/手动/百叶玻璃

AD60平开窗 |
AD60推拉窗 |
AD60平开门 |
该系列是对SOFTLINE 58mm白色平开系列的彩色共挤解决方案的补充,针对65%

节能标准要求的市场需求。SOFTLINE AD60广泛应用于中国大部分地区,并且在维卡出口市场也越来越受欢迎,包括新西兰及澳大利亚,这是因为在这些气候非常严酷的地区,型材的彩色共挤涂层具备了高性能的色彩稳定性。
窗 彩色共挤 |
门 彩色共挤 |
1.系列Uf 1.8 W/m2·K(含增强型钢)
2.系列型材厚度60mm,3腔
3.玻璃厚度范围4mm – 33mm
4.玻璃嵌入深度18mm
5.型材壁厚A类及B类






