产品属性:进口高端型材门窗
产品类别:LSD153
产品概况:
VEKASOFTLINELSD153 提升推拉门是超大尺寸推拉门的完
美解决方案,单扇宽度达到3米,提供更广阔的视野。
该系列的专用五金件在扇推动前,能将门扇向上提升7mm,保证了操作的顺畅。门扇锁
闭时,门扇四周全部为双重胶条密封,能够达到远超于任何标准推拉系列的更好气密性
及水密性。
设计特点:
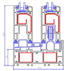
1.系列Uf2.35W/m2·K(含增强型钢)
2.系列型材厚153mm
3.玻璃厚度范围4mm–30mm
4.为欧槽提升推拉五金件设计
5.型材壁厚A类
开启方式:推拉
高性能配件:
1.ROTO 全系列定制五金产品
2.多点锁闭系统配合防盗设计,更高的安全等级。
3.三元乙丙密封隔热胶条。
4、可选内置电动/手动/百叶玻璃


LSD153提升推拉门
VEKA SOFTLINE LSD153 提升推拉门是超大尺寸推拉门的完美解决方案,单扇宽度达到3米,提供更广阔的视野。

该系列的专用五金件在扇推动前,能将门扇向上提升7mm,保证了操作的顺畅。门扇锁闭时,门扇四周全部为双重胶条密封,能够达到远超于任何标准推拉系列的更好气密性及水密性。

1.系列Uf 2.35 W/m2·K(含增强型钢)
2.系列型材厚度153mm
3.玻璃厚度范围4mm – 30mm
4.为欧槽提升推拉五金件设计
5.型材壁厚A类

